Помоему все ясно.

espace
- espace
- Сообщений: 898
- Зарегистрирован: Пт окт 12, 2007 12:32:14
- Откуда: Киев Русановские сады
- Авто: Renault Duster DCI 4x4
- Сайт
Re: моя стройка -Espace
Пт июл 22, 2016 13:01:16
и опять made in Ukraine


MODUL 700 LED SMD 52 IS
Шульга
- Шульга
- Сообщений: 13970
- Зарегистрирован: Ср апр 23, 2008 09:26:59
- Откуда: Киев
- Авто: Qashqai 2WD 2.0 CVT 2008 ГБО BRC
Re: моя стройка -Espace
Пт июл 22, 2016 13:17:29
выше я обещал выложить фото кухни. сорри только сейчас руки дошли и то частино. пока только размеры и визуалка.

qwertyua
- qwertyua
- Сообщений: 984
- Зарегистрирован: Ср дек 12, 2012 22:31:23
- Откуда: Киев
- Авто: Nissan Qashqai, 1.6, mt, SE, 2012
Re: моя стройка -Espace
Пт июл 22, 2016 18:12:38
Шульга писал(а):.
У меня картинки сломаны
shelty
- shelty
- Сообщений: 1725
- Зарегистрирован: Пн авг 11, 2008 20:22:23
- Откуда: Киев
Re: моя стройка -Espace
Пт июл 22, 2016 18:33:51
qwertyua писал(а):Шульга писал(а):.
У меня картинки сломаны
тоже
Шульга
- Шульга
- Сообщений: 13970
- Зарегистрирован: Ср апр 23, 2008 09:26:59
- Откуда: Киев
- Авто: Qashqai 2WD 2.0 CVT 2008 ГБО BRC
Re: моя стройка -Espace
Пт июл 22, 2016 20:48:18
сейчас поправлю
- Вложения
-

-

espace
- espace
- Сообщений: 898
- Зарегистрирован: Пт окт 12, 2007 12:32:14
- Откуда: Киев Русановские сады
- Авто: Renault Duster DCI 4x4
- Сайт
Re: моя стройка -Espace
Пт июл 22, 2016 21:47:32
слева два пеналла менее глубокие чем нижняя часть ?
qwertyua
- qwertyua
- Сообщений: 984
- Зарегистрирован: Ср дек 12, 2012 22:31:23
- Откуда: Киев
- Авто: Nissan Qashqai, 1.6, mt, SE, 2012
Re: моя стройка -Espace
Пт июл 22, 2016 21:54:17
Ого кухонька

Может холодильник с м/в местами поменять?
Зы: может куда-то в другую тему?
oreh
- oreh
- Сообщений: 9561
- Зарегистрирован: Вт май 06, 2008 16:42:22
- Откуда: Харьков
- Авто: Nissan Qashqai, 2.0CVT, 4WD, Tekna Pack
Re: моя стройка -Espace
Сб июл 23, 2016 11:17:03
espace писал(а):слева два пеналла менее глубокие чем нижняя часть ?
Похоже, шо там стена утоплена, может из-за вентканалов на правой части
Шульга
- Шульга
- Сообщений: 13970
- Зарегистрирован: Ср апр 23, 2008 09:26:59
- Откуда: Киев
- Авто: Qashqai 2WD 2.0 CVT 2008 ГБО BRC
Re: моя стройка -Espace
Сб июл 23, 2016 11:35:55
oreh писал(а):Похоже, шо там стена утоплена, может из-за вентканалов на правой части
сразу видно программиста которому приходилось самому и не один раз делать ремонт
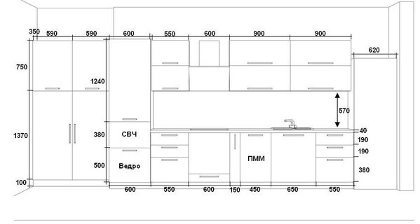
п.с. левые два пенала по глубине 350 мм на схеме проставлено. Они стоят в нище которая получилась из - за вент каналов
qwertyua писал(а):Может холодильник с м/в местами поменять?
не вариант. слева окно, а справа собственно вход на кухню. тут уже чистой воды логистика

и мойка через 55см столешницы.
п.с. размеры кухни
- Вложения
-

qwertyua
- qwertyua
- Сообщений: 984
- Зарегистрирован: Ср дек 12, 2012 22:31:23
- Откуда: Киев
- Авто: Nissan Qashqai, 1.6, mt, SE, 2012
Re: моя стройка -Espace
Сб июл 23, 2016 12:15:06
Ну не знаю, три пенала какой-то стеной выглядят
Глядя на план поставил бы мойку под окно, т.к. комната вытянута. Хотя возможно туда лучше стол

Зы: всё имхо
espace
- espace
- Сообщений: 898
- Зарегистрирован: Пт окт 12, 2007 12:32:14
- Откуда: Киев Русановские сады
- Авто: Renault Duster DCI 4x4
- Сайт
Re: моя стройка -Espace
Сб июл 23, 2016 12:55:13
oreh писал(а):espace писал(а):слева два пеналла менее глубокие чем нижняя часть ?
Похоже, шо там стена утоплена, может из-за вентканалов на правой части
имхо . выровнял бы все по фасадам
qwertyua
- qwertyua
- Сообщений: 984
- Зарегистрирован: Ср дек 12, 2012 22:31:23
- Откуда: Киев
- Авто: Nissan Qashqai, 1.6, mt, SE, 2012
Re: моя стройка -Espace
Сб июл 23, 2016 14:23:36
2250+280=2530, где я ошибся? Глубина ниши 0?
healix
- healix
- Сообщений: 10721
- Зарегистрирован: Сб фев 09, 2008 11:03:48
- Откуда: Киев
- Авто: Qashqai 1.6 Tekna 2007, Ford Kuga 2017 FWD МТ6 2.0 TDCi 150
Re: моя стройка -Espace
Сб июл 23, 2016 15:01:22
Фасады выравнивать нельзя - закроется окно.
Я бы делал так: от входа шкаф, потом холодильник, потом микроволновка, потом плита, потом мойка, а в угол и весь торец под окном - рабочая поверхность.
oreh
- oreh
- Сообщений: 9561
- Зарегистрирован: Вт май 06, 2008 16:42:22
- Откуда: Харьков
- Авто: Nissan Qashqai, 2.0CVT, 4WD, Tekna Pack
Re: моя стройка -Espace
Сб июл 23, 2016 15:52:45
Как по мне, то рабочей поверхности вообще мало, расоложилбы, думаю, как Хеликс советует слева и пожертвовалбы как мин одним шкафом
Пс. Хотя нет, рабочую побольше между мойкой и варочной, как-то привычней
Шульга
- Шульга
- Сообщений: 13970
- Зарегистрирован: Ср апр 23, 2008 09:26:59
- Откуда: Киев
- Авто: Qashqai 2WD 2.0 CVT 2008 ГБО BRC
Re: моя стройка -Espace
Сб июл 23, 2016 19:27:04
healix писал(а):Я бы делал так: от входа шкаф, потом холодильник, потом микроволновка, потом плита, потом мойка, а в угол и весь торец под окном - рабочая поверхность.
рассматривали и такой вариант. обсчитывали получалось на 10к дороже за счет более глубокой столешницы в районе окна, не стандартный размер. Еще момент ставить свч рядом с холодильником нельзя. сильно сокращается срок службы последнего.
Текущая компоновка идет по принципу - на входе первый это холодильник что бы пакеты с продуктами не носить через всю кухню. за ним рабочая пов. и мойка и т.д.
Powered by phpBB © phpBB Group.
phpBB Mobile / SEO by Artodia.